売戸建

松本市内田の5LDKの邸宅(リフォーム済のフレッシュアップ住宅)

物件詳細

  • 土地面積:599.03㎡(181.20坪)
  • 建物 構造:木造スレート葺2階建 面積:237.75㎡(71.91坪)
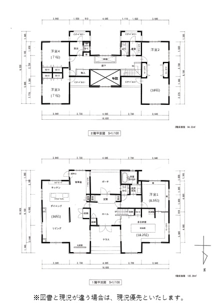
  • 間取:5LDK+S 駐車場6台
  • 接道:北側 松本市道4581号線 W=6.5m 接約22.0m
       南側 松本市道4709号線 W=4.0m 接約13.5m

♦支払例♦
物件価格4300万円
諸費用別途
頭金無しボーナス支払無し
金利1.1%八十二長野銀行

月々支払額123,397円/住宅ローン控除額(10年間)11,666

123,397円-11,666円=111,731円

住宅ローン控除後の月々支払額(10年間)111,731

松本市内田にまさに邸宅と呼ぶのにピッタリなフレッシュアップ住宅が出ました。

外観はおしゃれなラップサイディングを貼ったアメリカンスタイル。広々とした開放的な空間と高い天井、そして大きな窓から光がたっぷりと入る明るく素敵な住宅です。

玄関を入ってまず驚くのは高い吹抜。まさにアメリカンスタイルの住宅です。リビングダイニングは実に36帖の広さ、もちろんキッチンも使いやすいアイランドキッチンが付いており、料理好きな奥様の為の空間です。これだけ広いとお友達を集めてホームパーティーもできますよね。

間取は多目的室を含めて5LDKですから大家族でもOKです。それに2階にはシャワールームまで付いている贅沢な仕様となっています。

また、利便施設は、デリシア寿店まで車で3分、セブンイレブン松本牛伏寺下店まで徒歩4分、八十二銀行寿支店まで車で3分と便利です。学校は明善小学校まで徒歩5分、そして明善中学校まで徒歩4分とお子様の通学も楽ちんです。

気になる方はお気軽にご連絡いただければ御案内します。

フレッシュアップ住宅

フレッシュアップ住宅とは弊社が中古住宅を買い取ったのち、現代のライフスタイルに合わせてキッチンや風呂、トイレ設備の性能を向上させたり、建具、壁、天井などの内装や屋根、外壁などの外装を綺麗に直し、耐震が不足している建物には耐震補強を施し販売しております、中古住宅です。

このリフォームをすることに依り、住宅の耐用年数を長く伸ばすことが出来、また、快適な生活を送ることが出来ます。


間取図
リフォーム内容

物件詳細情報

価格

4300万円

整理番号

26

所在地

長野県 松本市 大字内田 740番地43他

土地面積(㎡)

599.03㎡

土地面積(坪)

181.20坪

小学校

明善小学校 400m 徒歩5分

中学校

明善中学校 250m 徒歩4分

都市計画

市街化区域

用途地域

第一種中高層住居専用地域

土地権利

所有権

地目

宅地

建ぺい率

60%

容積率

200%

現況

空家

利便施設

デリシア寿店1200m(車3分)、セブンイレブン松本牛伏寺下店300m(徒歩4分)八十二長野銀行村井支店3100m(車8分)

引渡し時期

即時

取引形態

売主

その他

■上水名義変更料30,000円■電柱有り■平成6年5月24日新築

最終更新日 2026.03.05

交通

路線名1

JR篠ノ井線

駅名1

村井駅

駅1から徒歩

自転車14分

中古住宅、分譲土地は(株)サポートへ

松本市、安曇野市、塩尻市周辺の中古住宅、分譲土地は株式会社サポートにお任せください。

現地見学、内覧のお申し込みは随時受け付けています。